KITCHENS
CLASSIC & SHAKER KITCHENS
HANDLELESS KITCHENS
MODERN KITCHENS
WHY ZODIAKITCHENS
CABINET SPEC
CATALOGUE
CONTACT US
PROJECTS GALLERY
Our Blogs
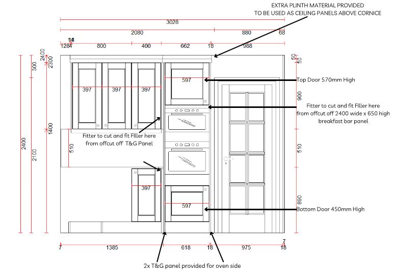
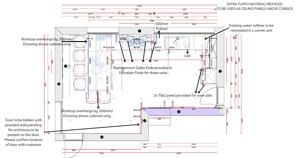
GILL PROJECT
Client: Gill
Installation: ZodiaKitchens
Kitchen Range: Belsay Beaded Porcelain
Project Status: In Progress