
Client: Lovell Homes
Range: Aldana Cashmere
This was the second supply-only collaboration with Lovell Homes.
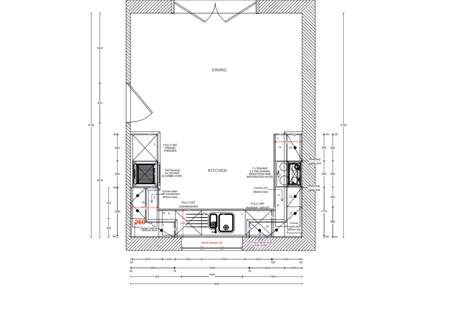
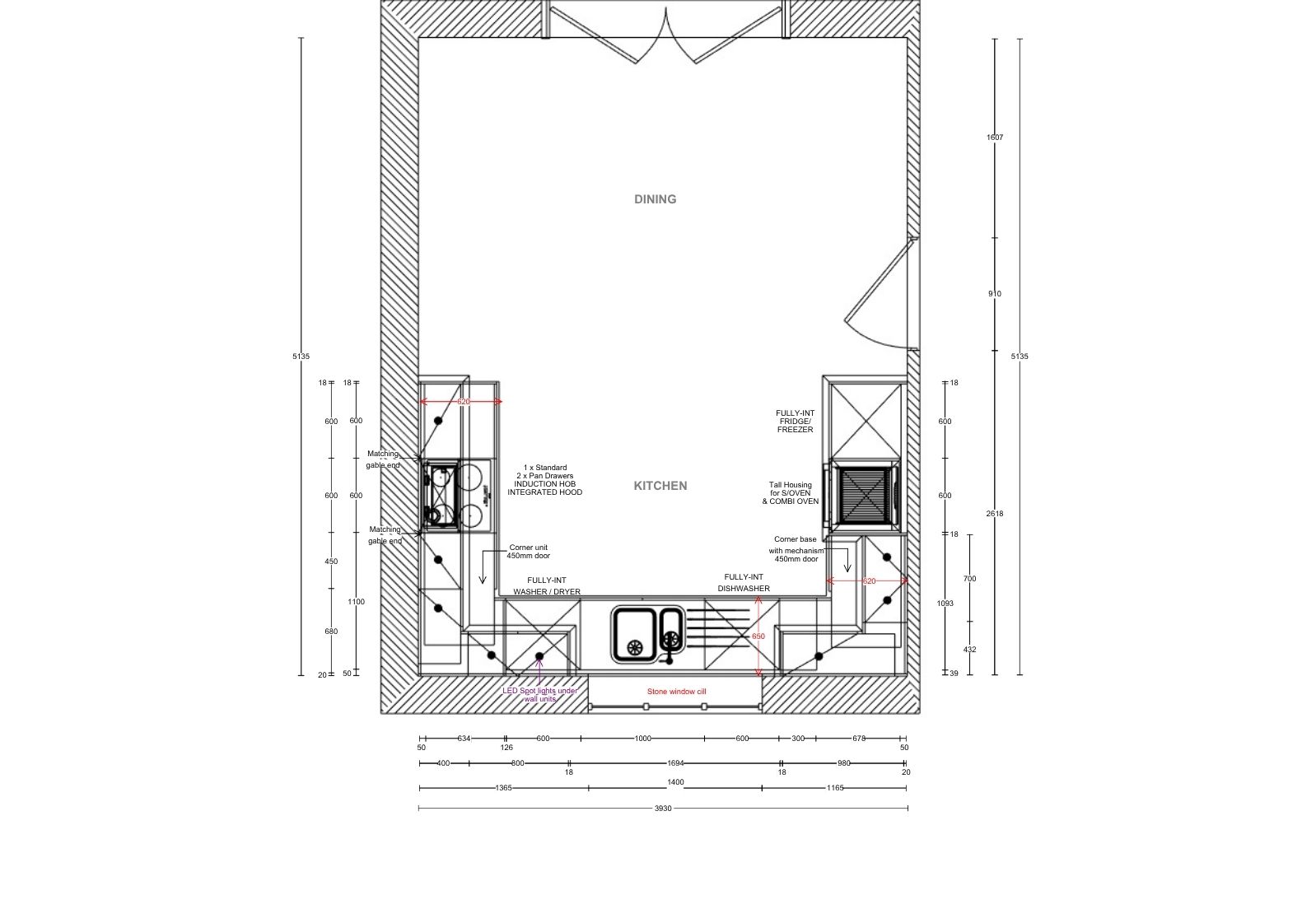
Working in close partnership with the Lovell team, we ensured their client expectations were met from the outset. Starting with detailed kitchen designs based on architectural floorplans, we progressed to on-site surveys to guarantee precision and a seamless delivery.

