
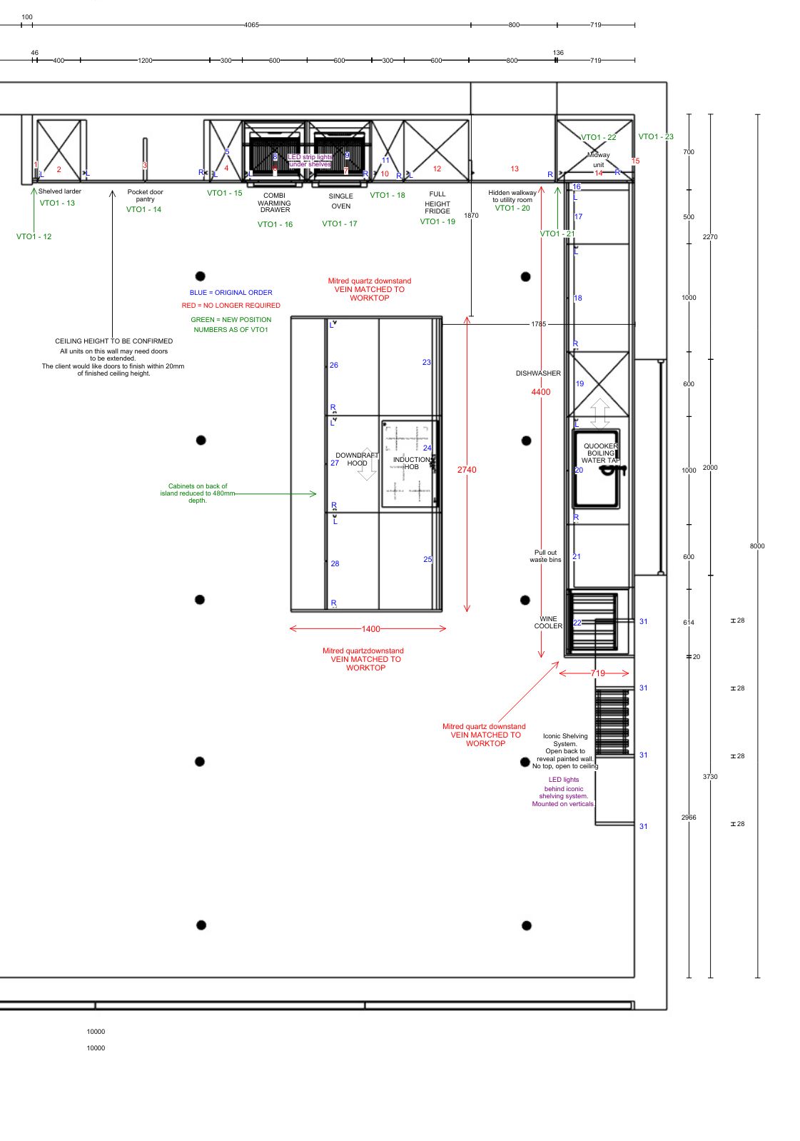
Rezana Lined Walnut
Working closely with the customer for this supply only project.
We provided a completely bespoke modern kitchen, focused on storage whilst adhering to the concept of a spacious open plan feel
The stunning kitchen shown below featuring hidden walkway and hide away pocket door pantry in a stunning walnut finish, with made to measure worktops and open floor to ceiling shelving.

