
Client: Lovell Homes
RANGE : BELSAY WOODGRAIN
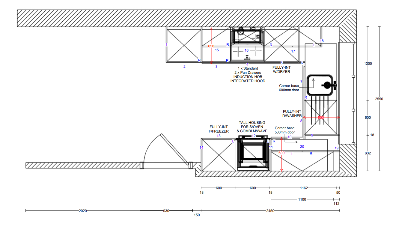
This was a supply-only collaboration with Lovell Homes for their Heathstock site development.
Working in close partnership with the Lovell team, we ensured their client expectations were met from the outset. Starting with detailed kitchen designs based on architectural floorplans, we progressed to on-site surveys to guarantee precision and a seamless delivery.
“ZodiaKitchens provided beautifully considered kitchen layouts that balanced storage, style, and sophistication. The team delivered not only excellent designs but also outstanding customer service, deep product knowledge, and meticulous attention to detail throughout the project.”

